$2,650,000
2,242
SQ FT
$1,182
SQ/FT
1432 Mercer Avenue
@ Hicks Ave. - 10 - Willow Glen, San Jose
- 4 Bed
- 3 Bath
- 2 Park
- 2,242 sqft
- San Jose
-
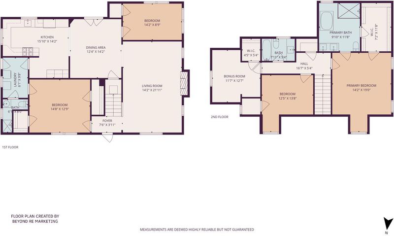
Located on one of Willow Glens' most sought-after tree-lined streets, 4 bedrooms with a bonus room/den, this desirable floor plan includes 2 ground floor bedrooms, perfect for in-laws/home office, 3 full bathrooms, 2,242 sq ft, plus a 525 sq.ft. detached 2-car garage with storage room set on an expansive 7,380 sq.ft. lot. Thoughtfully updated with extensive 2026 upgrades, the home features refinished hardwood flooring, new interior and exterior paint, designer lighting, new carpeting, and elegant finishes throughout.The modernized kitchen showcases new cabinetry, sink, and appliances including refrigerator, microwave, and stove/oven, along with updated kitchen and laundry flooring and new washer and dryer.The luxurious primary suite has been reimagined with a lifted ceiling, expanded closet, and a spa-inspired bathroom featuring a new soaking tub, shower, smart toilet, and designer vanity.Additional upgrades:renovated bathrooms with new vanities and flooring, new rods and curtains, a new upstairs AC unit and epoxy garage flooring.Smart home features include a Ring doorbell, Honeywell thermostat and smart lock.Refreshed landscaping with new lawn, sprinkler system, and new outdoor lights. Stroll to Downtown Willow Glen, walk to schools and parks &near the Willow Glen farmers market
- Days on Market
- 17 days
- Current Status
- Active
- Original Price
- $2,599,000
- List Price
- $2,650,000
- On Market Date
- Mar 13, 2026
- Property Type
- Single Family Home
- Area
- 10 - Willow Glen
- Zip Code
- 95125
- MLS ID
- ML82038435
- APN
- 429-40-040
- Year Built
- 1941
- Stories in Building
- 2
- Possession
- COE
- Data Source
- MLSL
- Origin MLS System
- MLSListings, Inc.
As-Safa Institute/As-Safa Academy
Private K-10 Coed
Students: 24 Distance: 0.4mi
Booksin Elementary School
Public K-5 Elementary
Students: 839 Distance: 0.5mi
Willow Glen High School
Public 9-12 Secondary
Students: 1737 Distance: 0.6mi
Willow Glen Middle School
Public 6-8 Middle
Students: 1225 Distance: 0.6mi
Willow Glen Elementary School
Public K-5 Elementary
Students: 756 Distance: 0.7mi
Carden Day School Of San Jose
Private K-8 Elementary, Coed
Students: 164 Distance: 0.9mi
- Bed
- 4
- Bath
- 3
- Shower over Tub - 1, Stall Shower - 2+
- Parking
- 2
- Detached Garage
- SQ FT
- 2,242
- SQ FT Source
- Unavailable
- Lot SQ FT
- 7,380.0
- Lot Acres
- 0.169421 Acres
- Kitchen
- Countertop - Formica, Dishwasher, Cooktop - Gas, Garbage Disposal, Hood Over Range, Microwave, Oven - Double
- Cooling
- Window / Wall Unit
- Dining Room
- Formal Dining Room, Eat in Kitchen
- Disclosures
- Natural Hazard Disclosure
- Family Room
- Separate Family Room
- Flooring
- Tile, Vinyl / Linoleum, Wood
- Foundation
- Concrete Perimeter
- Fire Place
- Living Room, Wood Burning
- Heating
- Central Forced Air
- Laundry
- In Utility Room, Inside
- Views
- Neighborhood
- Possession
- COE
- Fee
- Unavailable
MLS and other Information regarding properties for sale as shown in Theo have been obtained from various sources such as sellers, public records, agents and other third parties. This information may relate to the condition of the property, permitted or unpermitted uses, zoning, square footage, lot size/acreage or other matters affecting value or desirability. Unless otherwise indicated in writing, neither brokers, agents nor Theo have verified, or will verify, such information. If any such information is important to buyer in determining whether to buy, the price to pay or intended use of the property, buyer is urged to conduct their own investigation with qualified professionals, satisfy themselves with respect to that information, and to rely solely on the results of that investigation.
School data provided by GreatSchools. School service boundaries are intended to be used as reference only. To verify enrollment eligibility for a property, contact the school directly.





























































