$999,000
1,015
SQ FT
$984
SQ/FT
7530 Wells Ave
@ Ash - Central Newark, Newark
- 3 Bed
- 1.5 (1/1) Bath
- 1 Park
- 1,015 sqft
- Newark
-
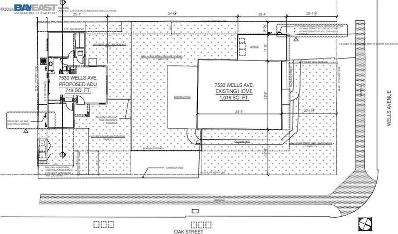
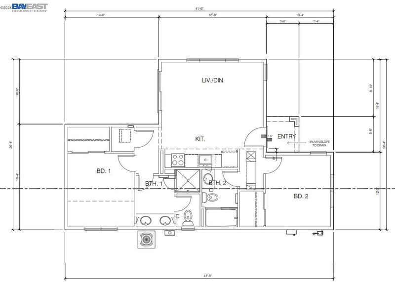
Do not miss this opportunity to purchase a home in the tri-cities area ready to build ADU plans! This home features 3 bedrooms and 1.5 bathrooms, solid surface countertops in kitchen and full size washer and dryer. The backyard is spacious for outdoor entertainment. Additionally, there are plans for a 2 bed / 2 bath ADU already approved through the city of Newark - to be sold with the property. This allows the new owner to add 749 square feet of living space - you can occupy one home and rent the ADU for additional income. The home is conveniently located near Dumbarton, 880, and San Mateo Bridge. Offer Due Date: Monday, March 23, 2026 by 2:00 pm
- Current Status
- New
- Original Price
- $999,000
- List Price
- $999,000
- On Market Date
- Mar 18, 2026
- Property Type
- Detached
- D/N/S
- Central Newark
- Zip Code
- 94560
- MLS ID
- 41127588
- APN
- 921493
- Year Built
- 1957
- Stories in Building
- 1
- Possession
- See Remarks, Seller Rent Back
- Data Source
- MAXEBRDI
- Origin MLS System
- BAY EAST
August Schilling Elementary School
Public K-6 Elementary
Students: 378 Distance: 0.5mi
James A. Graham Elementary School
Public K-6 Elementary
Students: 375 Distance: 0.9mi
Lincoln Elementary School
Public K-6 Elementary
Students: 401 Distance: 1.0mi
Birch Grove Intermediate
Public 3-6 Elementary
Students: 475 Distance: 1.0mi
St. Edward School
Private K-8 Elementary, Religious, Coed
Students: 272 Distance: 1.1mi
Newark Junior High School
Public 7-8 Middle
Students: 889 Distance: 1.2mi
- Bed
- 3
- Bath
- 1.5 (1/1)
- Parking
- 1
- Attached, Garage
- SQ FT
- 1,015
- SQ FT Source
- Public Records
- Lot SQ FT
- 8,000.0
- Lot Acres
- 0.18 Acres
- Pool Info
- None
- Kitchen
- Dishwasher, Dryer, Washer, Gas Water Heater, Disposal
- Cooling
- No Air Conditioning
- Disclosures
- Nat Hazard Disclosure, Owner is Lic Real Est Agt
- Entry Level
- Exterior Details
- Back Yard, Front Yard
- Flooring
- Tile, Carpet
- Foundation
- Fire Place
- Brick, Living Room
- Heating
- Forced Air
- Laundry
- Dryer, Laundry Room, Washer
- Main Level
- 3 Bedrooms, 1 Bath, Laundry Facility, Main Entry
- Possession
- See Remarks, Seller Rent Back
- Architectural Style
- Contemporary
- Construction Status
- Existing
- Additional Miscellaneous Features
- Back Yard, Front Yard
- Location
- Corner Lot
- Pets
- No
- Roof
- Composition Shingles
- Water and Sewer
- Public
- Fee
- Unavailable
MLS and other Information regarding properties for sale as shown in Theo have been obtained from various sources such as sellers, public records, agents and other third parties. This information may relate to the condition of the property, permitted or unpermitted uses, zoning, square footage, lot size/acreage or other matters affecting value or desirability. Unless otherwise indicated in writing, neither brokers, agents nor Theo have verified, or will verify, such information. If any such information is important to buyer in determining whether to buy, the price to pay or intended use of the property, buyer is urged to conduct their own investigation with qualified professionals, satisfy themselves with respect to that information, and to rely solely on the results of that investigation.
School data provided by GreatSchools. School service boundaries are intended to be used as reference only. To verify enrollment eligibility for a property, contact the school directly.

